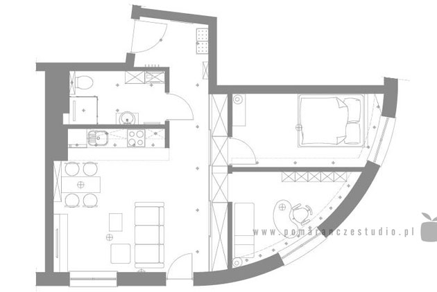
Wnętrze mieszkania o powierzchni 54m2 zaprojektowane dla młodej, pełnej energii pary. Na niewielkiej przestrzeni otwartej należało zmieścić aż 4 funkcje: gotowanie, jedzenie, wypoczynek oraz przechowywanie. Kuchnia zajmuje tylko 3 metry długości, ale dzięki zastosowaniu w jednej z szuflad wysuwnego rozkładanego blatu, zyskaliśmy dodatkowe miejsce do przygotowywania posiłków. Pod płytą umieściliśmy kompaktowy sprzęd zmywarko-piekarnik, idealny dla 2 osób. Innym sprytnym rozwiązaniem jest zbudowanie szafy na całej szerokości ściany między salonem a prywatnymi pokojami. Za dwoma skrzydłami drzwi przesuwnych znajdują się przejścia, resztę zajmuje garderoba. W pokoju zwanym biurowym, dominują czerwone akcenty i ściana z ręcznie malowaną grafiką, która w przyszłości zmieni swe oblicze by dopasować się do dziecięcych akcentów. Wyciszająca sypialnia skrywa lekki podmuch wiatru w stronę błękitu dmuchawców a łazienka rozbudza leniwy poranek ożywczym pomarańczem w mozaice ściennej.









